PORTLAND MUSEUM OF ART





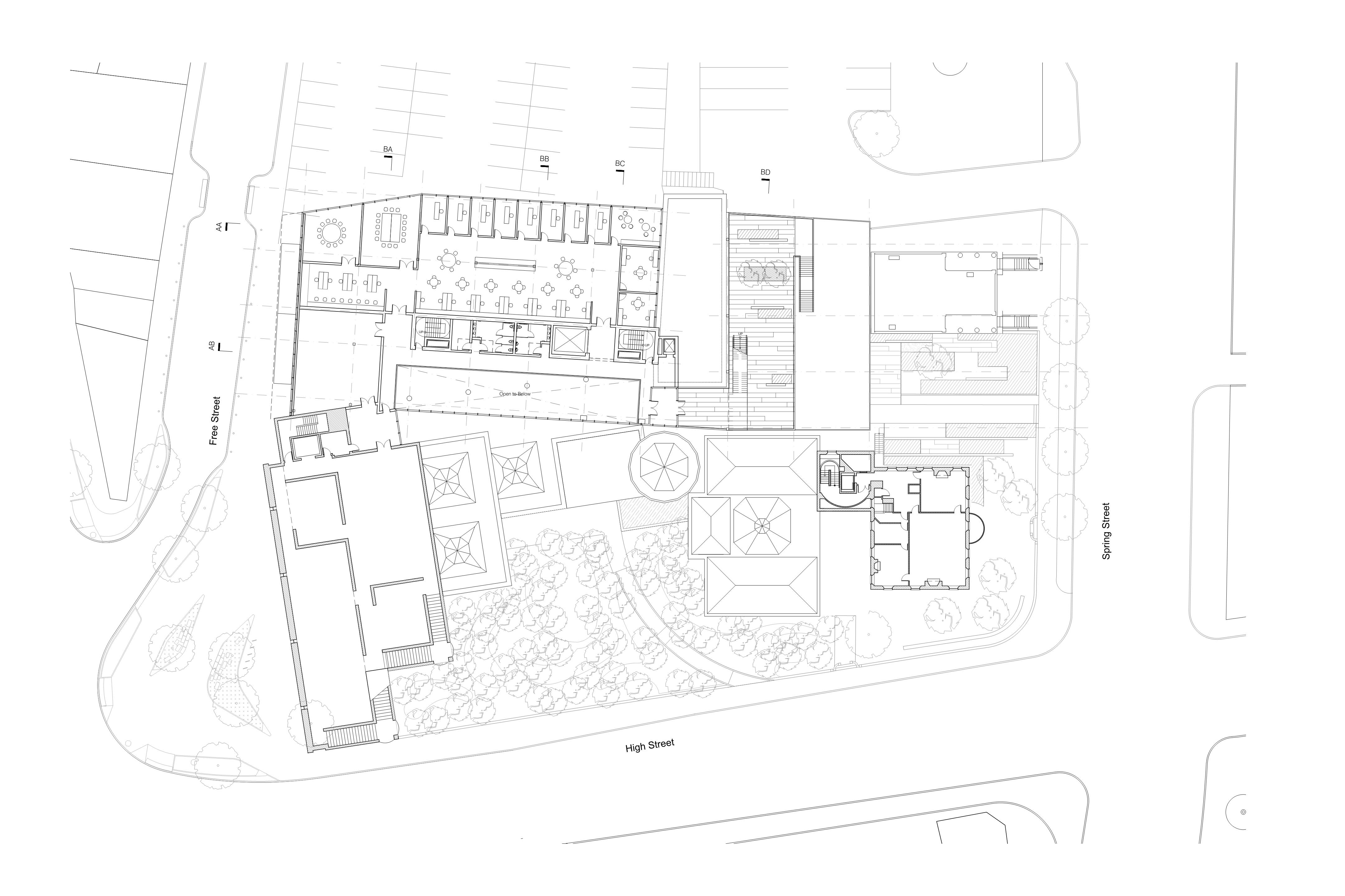
The new building would be integral to the aggregative urban morphology of historic Portland while fostering new and emerging artistic practices and curatorial programs. Its non-hierarchical composition, evidently distorted in deference to the site, contrasts with that of the museum’s earlier buildings, each of which is classically ordered and autonomous.

Paradoxically, the new building is tasked with becoming the museum’s main entrance despite being offset from Congress Square which is dominated by the much wider existing main façade of the Payson building by Harry Cobb. Thus, the new facade needs to be significantly taller and visibly associated with other urban spaces that extend further afield. The proposed facade forms the side of a high gabled volume, the peak of which would be on axis with Congress Street. Slim and transparent, this new volume would have a strong but ephemeral presence that rises above the wide and opaque facade of the existing. Evocatively contained within the volume is a piece of Portland’s past, the neighboring building’s facade, repurposed to serve only as an unusually large portal to the museum. The new building would represent a diaphanous vitrine containing this distinctive architectural relic, a testament to the museum’s goal to preserve, reframe, and recontextualize diverse interpretations of art from the past and present for the future.

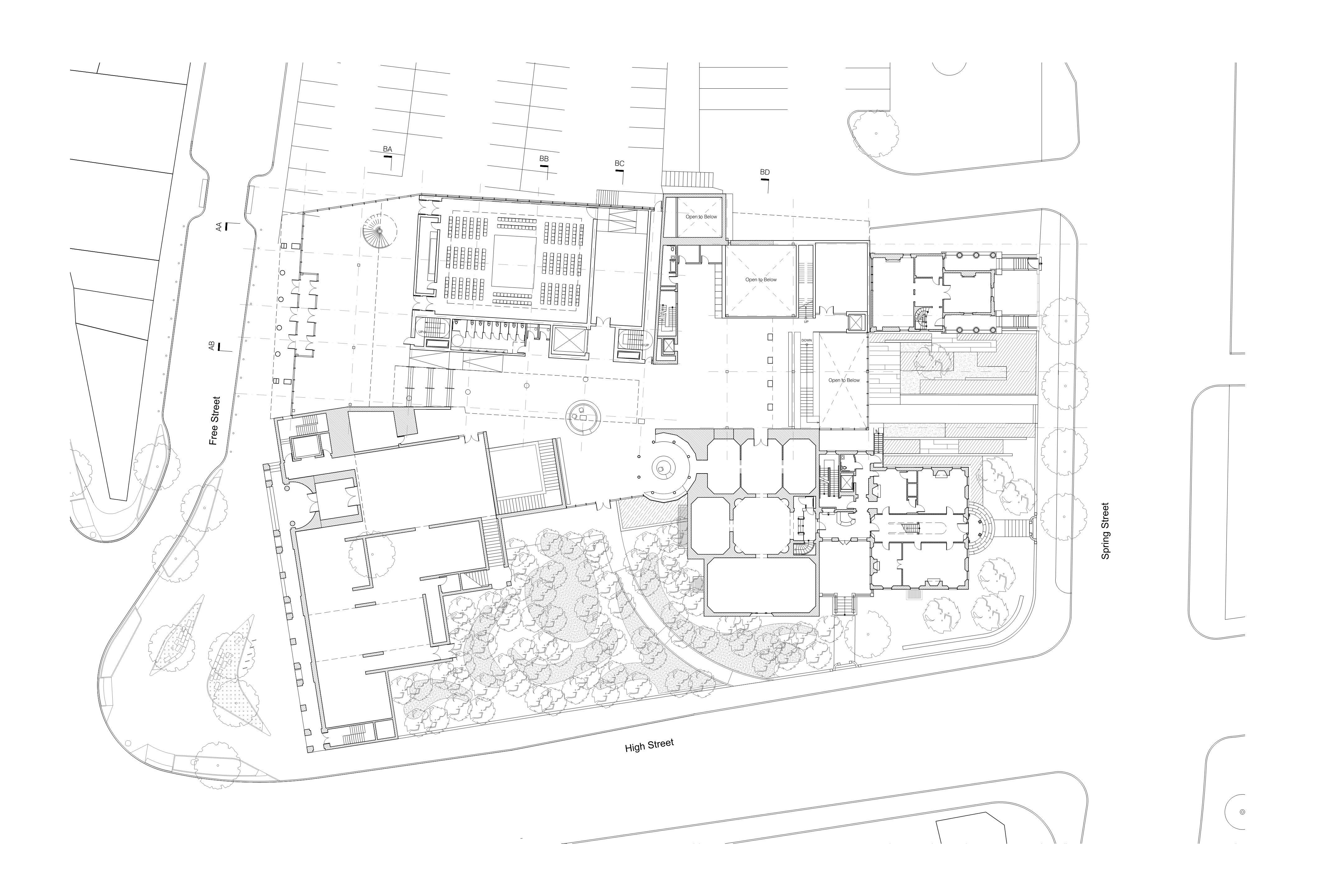
The main lobby is a community space entered through a wide expanse of glass and doors. From here, visitors would proceed to a light filled, linear space bracketed on one end by the four columns of the historic entrance portico and on the other by an angled row of four new, unusually tall wood columns. This attenuated space serves as the threshold to the rest of the museum campus and to a new birch tree garden, a remarkable oasis of slender trees to which the new columns unmistakably refer. Essentially, the museum encapsulates an interval of space and time, situated between the historical center of Portland and the natural environment of its surroundings.

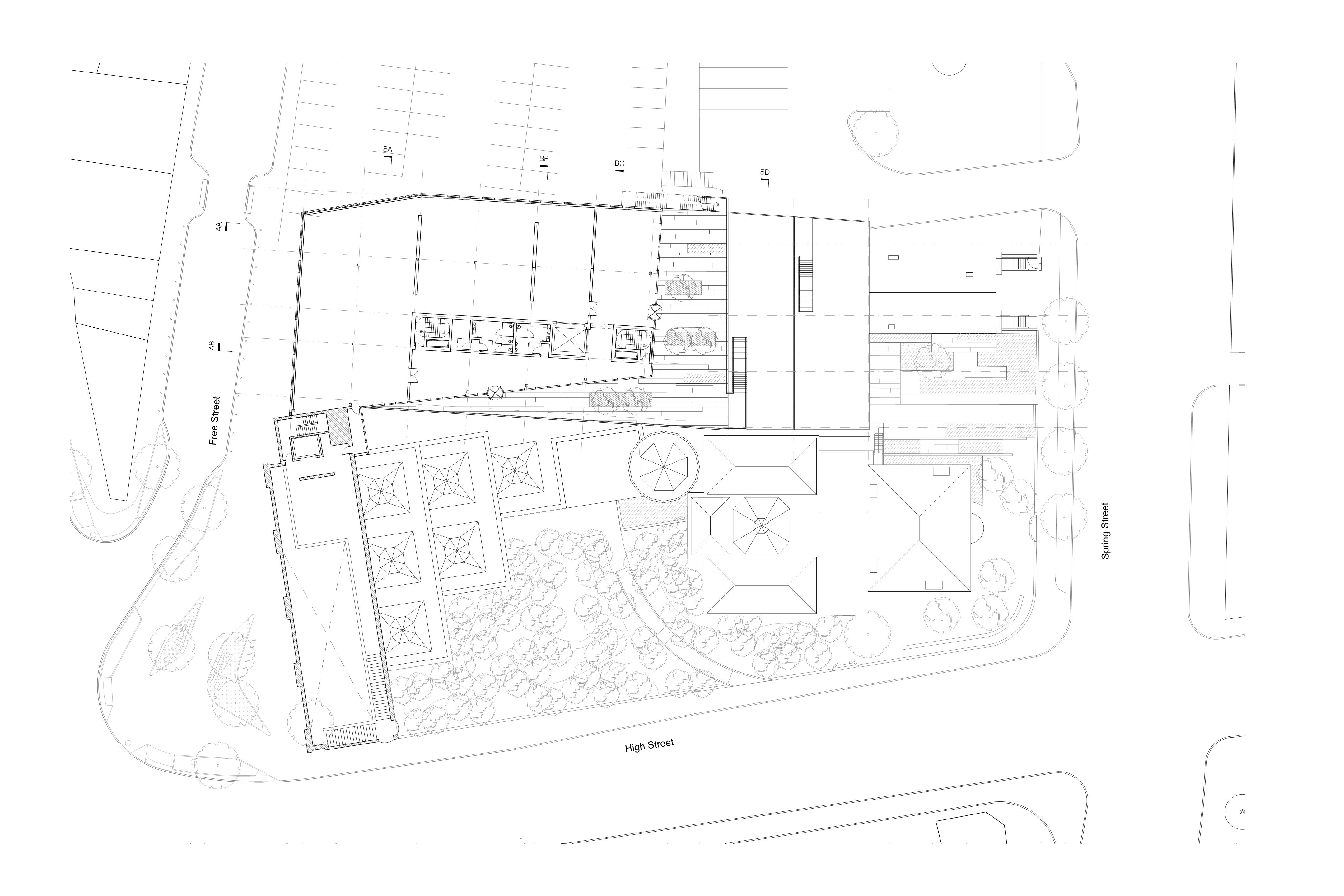
The Payson Building defines a linear sequence of galleries, rising from bottom to top. The new building extends this sequence vertically, culminating in a remarkably high top lit gallery and restaurant. Below this, the building appears to be a podium containing numerous spaces for special collections, educational and community programs and an auditorium at lobby level. From Spring Street, the podium is composed of ascending sculpture terraces, surmounted by the sawtooth roofed building that evokes Maine’s historic marine industry as well as an urban artist’s studio building typology.


Location: Portland, Maine

Client: The Portland Museum of Art (PMA) and Dovetail Design Strategists

Schedule: Finalist, international architectural competition, 2022-23

Project team: Toshiko Mori Architect + Johnston Marklee + Preston Scott Cohen with Simons Architects, Cross Cultural Community Services, Arup, Buro Happold, Hargreaves Jones, and WeShouldDoItAll