NANJING STUDENT CENTER





The Nanjing Student Center, located centrally in the master plan for the new Nanjing University in Xianlin, offers a singular expression of the dialogue between the idea of “big tent,” the collection of diverse constituents under one roof, and a tower which acts as a beacon and observation point.

The design exploits the techniques and economy of local construction practices as a means to develop an exceptional form. Poured-in-place concrete construction, using adjustable and recyclable form work, gives shape to a landscape-like roof that acts as the unifying “umbrella”.

The roof form is derived from a series of hyperbolic paraboloids, the ruling lines of which become reinforcing beams, all based on the same cross section, and distributed at regular intervals. 

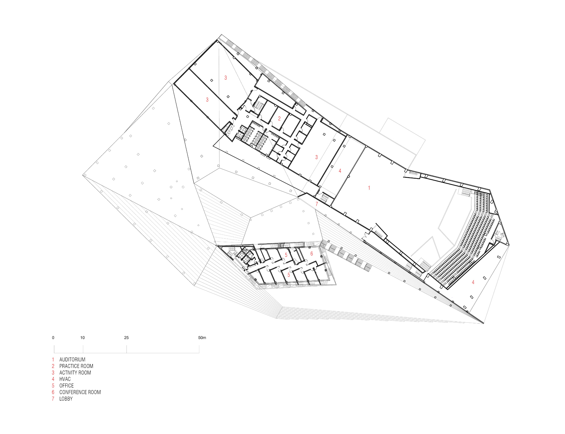
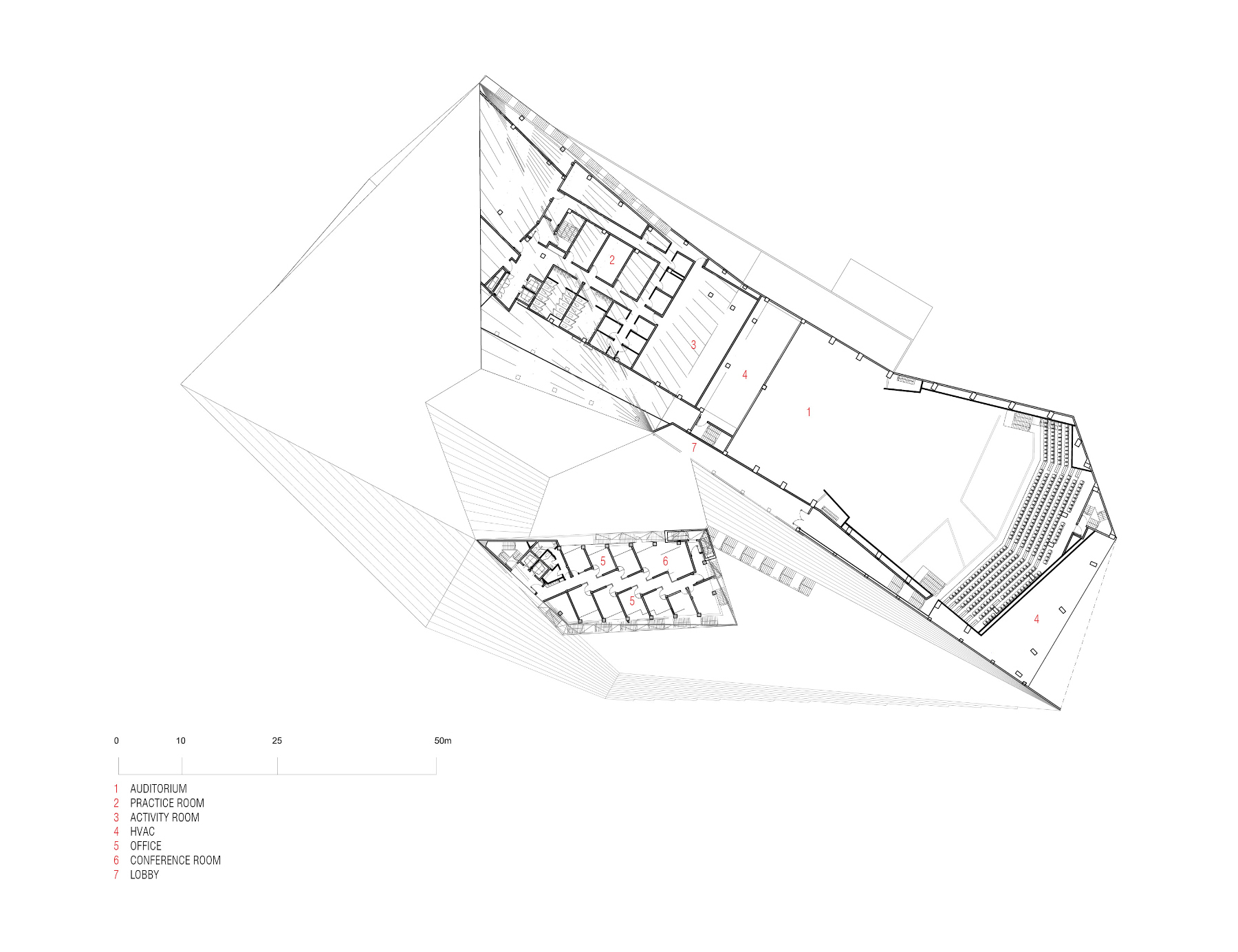
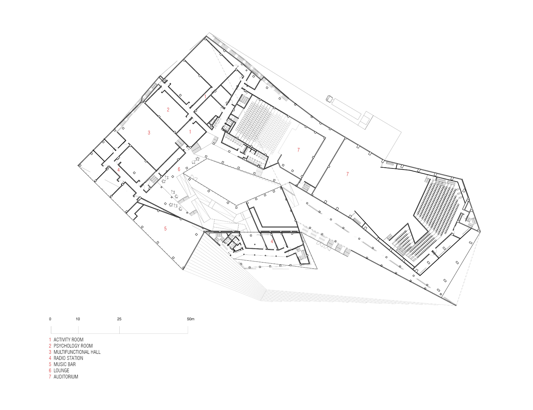
The interior accommodates a complex series of interrelated programs of student organizations and spaces for events. The spiraling form of the building is extended by a stair that ascends the outside of the tower. One of the two fire stairs is outside the body of the tower, thus allowing the unusually small floor plate that gives the tower its distinctive scale.

An economical and efficient passive energy strategy divides the building into several functionally independent zones, parts of the building that are not in use can be closed off thermally from those parts that are, dramatically reducing heating and cooling loads.


Location: Nanjing, China

Client: Nanjing University

Size: 14,865 sq. m.

Schedule: Competition, First Prize 2006; Schematic Design 2006; Design Development 2007; Construction 2008-2009

Program: 14,865 sq. m.; Reception Space; 107 seat Theater, 296 seat Theater; 1500 seat Auditorium; Temporary Exhibitions Space; Seminar and Conference Rooms; Classrooms; Restaurant; Bookstore; Administrative Offices

Team: Design Architect: Preston Scott Cohen, Inc.; Architect of Record: Zhang Lei Studio Preston Scott Cohen (Architectural Design), Amit Nemlich (Project Architect) Annie Barrett, David Saladik, Adam Modesitt (project assistants) Iwan Baan (Photograp