CAPE REP THEATER





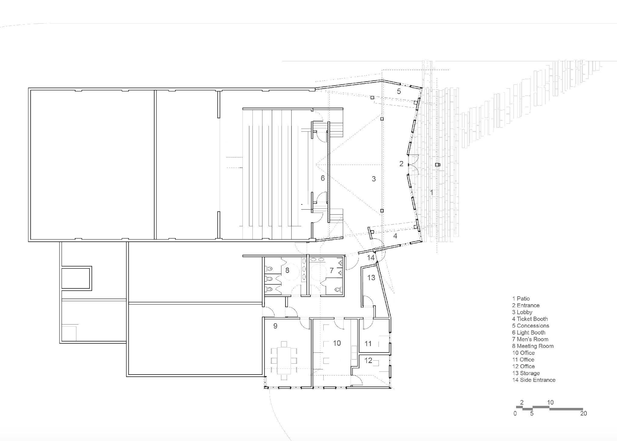
The Cape Rep theater is located in a beautiful nature conservancy in Brewster, MA. The intimate theater is presently housed in a 1960’s concrete block building that had once served as a summer camp. Additions have been made over the years and today it is a thriving theater complex in dire need of a multi-purpose lobby space with accompanying front-of-house support spaces - ticket booth, coat room, offices, restrooms.

The architecture of the new lobby will contribute a remarkable, memorable facade and a commodious sequence into the theater.

The building opposite the theater, the Crosby barn, a nineteenth century building of considerably greater historical architectural value, has been relegated to serving as a set storage facility for the last two decades. 

The plan is to restore and transform the barn into a theatrical workshop and to build a new foundation and basement below it, for storage. The outdoor children’s theater is presently considerably disconnected from the main theater’s campus. 

The circulation between the two main buildings, the children’s amphitheater and the parking areas will be redesigned to create a network of connecting paths centrifugally organized to connect to the main outdoor space between the main theater and the Crosby barn.


Location: Brewster, MA

Client: Cape Rep Theater

Size: 5,000 sq. ft.

Schedule: Schematic design of the lobby, 2013; Crosby barn restoration design, 2017

Program: Lobby expansion and addition to an existing 140 seat performance theater, including space for reception, box office, restrooms and concessions. Restoration of the historic Crosby Barn. The barn will house an open flexible performance space and include public restrooms, ticket office, kitchenette and storage in a new basement.

Team: Preston Scott Cohen (Design); Collin Gardner and Carl Dworkin (project assistants)